技術・経験が活きた改修工事
以前から住まいの改善でお世話になっていた M さん。
昨年(2022) 7月中旬に、築30年になる住まいのリビング改修の話を頂いた。
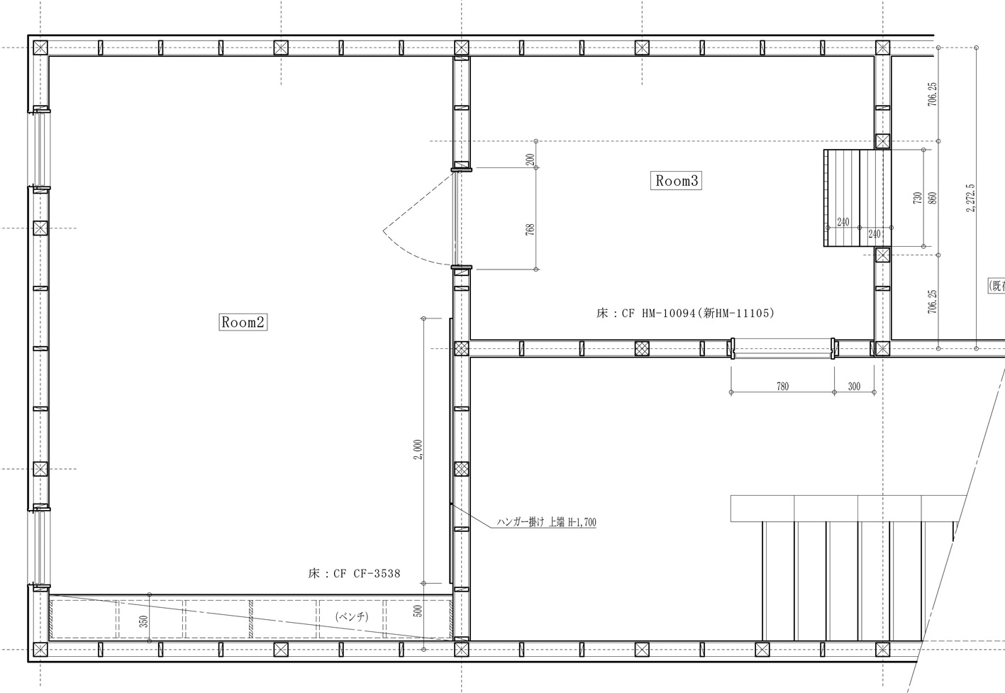
内容は、2階まで通ずる18帖ほど (洋間6帖3つ分) の吹抜リビングの
2階レベルに部屋を増設したいとこと。
当時の図面はすでに行方不明。
Mさんに建築当初の工事写真を探していただいたり、希望をスケッチにしてもらったり
また、こちらも階段実測から高さを決めたり、天井裏にもぐり柱の有無、梁の大きさや
柱への掛かり方を詳細に実測。
そして打合せ期間5か月。Mさんにも納得して頂いた図面が完成し昨年暮れに契約させた
頂きました。
年が明け 2023年1月を迎え、いよいよ実施段階に入ります。
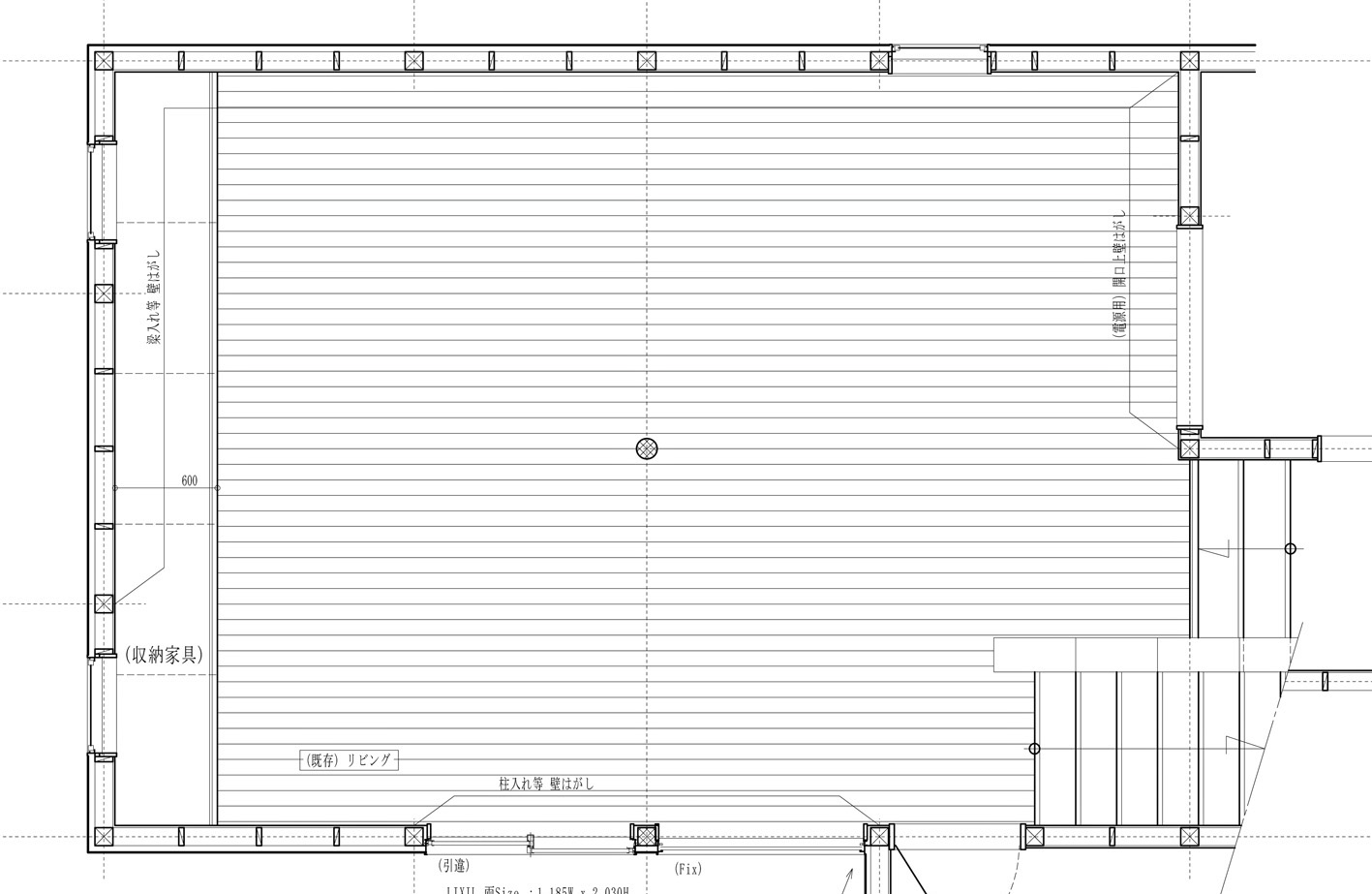
今までの図面上から 1 / 1 の実世界。30年間の建物の曲がり・倒れ・不陸など
また当時の基準線 (芯) が図面通りになっているか 様々な確認が必要です。
既存の壁に取り付く梁の位置や本当に図面上の柱が有るのか、
また基準となる角度 (90度) が建物と整合しているかなど試行錯誤の連続です。
はい!これで水平面の縦横が決まり、次は既存床と新規床の高さ関係の確認作業。
ちょっと分かりずらいですが、壁に縦横のラインは、それぞれが床ライン
だったり取り付く梁の位置だったりします。
実際、この位置関係が出るまではエラーや見落としが無いかハラハラな気分です。
ここまでの実施作業は、今後の工事がスムーズに流れる大事な仮設的作業。
次は中央、独立柱の「基礎工事」。
この後、型枠を組みコンクリートを流し込めば独立基礎の完成です。
この頃、並行して加工場では柱・梁材の墨付けと材木加工を進め
一方現場では、既存柱に新設梁を取り付ける準備と柱の無いところに
新設梁を受ける受梁材の取付を施しました。
やっと目に見える所まで進んできました。
いよいよ取付本番。当然室内なので荷揚げは人力です。
基準になる親梁を掛け直線具合を確認し、小梁の取付。
2階、大所の床組みが終え、1階から観る天井は
床を支える杉の根太 (ネダ) と化粧杉板と取付。
こんな感じ!
そして、床合板を貼り今後進む工事に向け2階の床養生をして
準備 OK !
※ここで注釈
1階床が見え梯子の掛かる部分は、そのまま2階までの吹抜として残し
ブルーシート部分に2間を造る計画。ふた間部分は改め天井を撤去して
奥のふたつ窓の部屋は既存の小屋組みを現した勾配天井になり、
手前のひと間も小屋組み現しの平天井となる予定。
当初から見た窓高さはこんな感じになりました。
このあと天井撤去後、壁の軸組設置・勾配平天井を造り
仕上へと進みます。
最後に。
今回は都合で仕上・完成部分のお伝えできませんが、やりがいのある仕事
でした。
改め振返り、希望の聞き出しから始まり階段段数からの全体高の
確認、天井裏に入り小屋組み材の掛かり方や部材サイズの確認、
そして実際の納め取付作業。持てる経験と実績がジャストフィットした
仕事でした。
引渡後、Mさんに今回のお話を感謝した次第です。
最後の最後。
指田、今回は材木の「墨付け作業」そして「建て方・現場取付」と
久しぶりに良い汗をかきました。
Thank You !
































